Tuinhuis Koudum

Dit luxe tuinhuis is een echte parel in uw tuin! Het tuinhuis is geheel voorzien van Lariks gebinten gemonteerd op prefab betonpoeren. De royale overkapping van 5,00x4,00 meter is middels glazen schuifwanden geheel afsluitbaar, hierdoor kunt u het hele jaar door genieten in uw tuin. Naast de overkapping zit nog een berging van 2,50x4,00 meter, groot genoeg voor bijvoorbeeld de stalling van tuingereedschap.

 

Maatwerk

Vekam Houtbouw levert uitsluitend maatwerk gefabriceerd in onze eigen werkplaats, u bepaalt zelf de afmetingen, uitvoering en uitstraling. Uiteraard staan wij voor u klaar om u hierbij te adviseren. 

 

Houtskeletbouw

Al onze producten worden uitgevoerd in houtskeletbouw. Deze unieke en duurzame vorm van houtbouw levert u de volgende voordelen op:

V   Zeer korte bouwtijd door fabricage uit eigen fabriek.

V   Vrije keuze in alle materialen.

V   Eenvoudig te (na) isoleren.

V   Door de korte bouwtijd krijgt u een uitstekende prijs-kwaliteit verhouding.

 

 

Voeg toe aan brochure Neem contact met ons op

Foto's

Specificaties

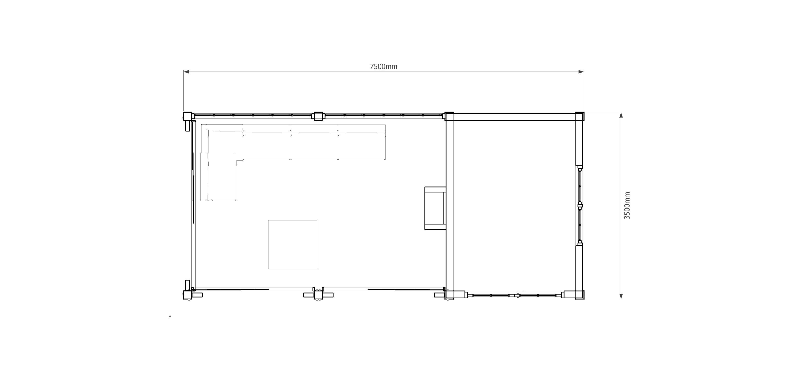
Hieronder vind u de specificaties van het houten tuinhui zoals afgebeeld. Materialen, afmetingen en de indeling van ramen en deuren zijn geheel naar wens aan te passen.  Voor meer informatie over de mogelijkheden kunt u een kijkje nemen op de pagina materialen. Benieuwd wat de schuur aangepast op uw wensen gaat kosten? Vraag dan snel een geheel vrijblijvende offerte aan!
 
Schuur 7,50 x 4,00 m. (bxd)
Overkapping 5,00 x 4,00 m. (bxd)
Oppervlakte  30 m2
Totale hoogte 3,50 m.
Fundering Betonpoeren 
Type hout Channelsiding
Dak Dakbeschot met EPDM
Goten Zinken HWA
Afwerking Woca ext. oil

 

Fundering

Een goede fundering is de basis voor een duurzaam (bij)gebouw. De keuze van de fundering hangt af van uw wensen, budget en ondergrond. Veel houten tuinhuizen, houten schuren en houten garages worden geplaatst op een hardhouten ringbalk. Als alternatief kan ook worden gekozen voor een gewapende betonvloer met vorstrand. Lees meer... 

 

Gebinten

Onze producten zijn uit te voeren met robuuste eiken of Lariks gebinten. Deze kunnen traditioneel of met pen-en-gat verbinding worden geproduceerd. Lees meer...

 

Gevelbekleding

De keuze van de gevelbekleding bepaalt in sterke mate de uitstraling en duurzaamheid van het gebouw. Wij werken voornamelijk met zeer duurzame materialen zoals WaxedWood, Red Cedar en Dumowood. Deze materialen kunnen zowel onbehandeld worden toegepast als naar wens op kleur gespoten. Lees meer...

 

Dakbedekking

De keuze van de dakbedekking is sterk van invloed op de uitstraling en duurzaamheid van uw bouwwerk. Voor zadeldaken en schilddaken kunt u kiezen voor een goedkope variant als golfplaten of duurzamere oplossingen als dakpannen, dakpanprofielplaten of felsplaten. Platte daken worden door ons standaard uitgevoerd met EPDM dakbedekking. Lees meer...  

 

Ramen / deuren

De raam- en deurkozijnen van Vekam Houtbouw zijn speciaal ontwikkeld voor gebruik in houten schuren, garages en tuinhuizen. Dankzij het slimme kozijnprofiel zijn de kozijnen eenvoudig in uw houten schuur, garage of ander bijgebouw te plaatsen. De raam en deur kozijnen zijn leverbaar in Meranti of Vuren, waarbij er keuze is uit een basis, comfort of een luxe uitvoering. Lees meer...  

 

Garagedeuren

Wij leveren houten garagedeuren, sectionaaldeuren en stalen kanteldeuren. De deuren kunnen in vele uitvoeringen en maatvoeringen worden geleverd. Lees meer...  

 

Goten

De keuze van het type goot bepaalt mede de uitstraling van uw tuinhuis, schuur of garage. Vekam beschikt daarom over verschillende type goten. Lees meer...  

 

Beitsen en olie

Voor een lange levensduur van uw houten garage, schuur of tuinhuis is goed onderhoud erg belangrijk. Vekam heeft een uitgebreid programma aan beitsen en oliën in verschillende kleuren. Lees meer... 

Contact​formulier

Vul hieronder uw gegevens in en wij nemen spoedig contact met u op.

*Verplichte velden

Deze site is beveiligd met reCAPTCHA, de Google Privacy Policy en Voorwaarden zijn van toepassing.